Page 13 - Profil Perpustakaan Itenas
P. 13
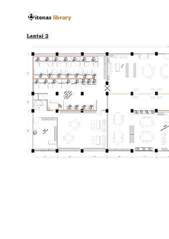
Lantai 2
24.00
Hal | 9
Inet-01 Inet-02 Inet-03 Inet-04 Inet-05
Inet-06 Inet-07
Jurnal
R. Baca
7.00 Inet-17 Inet-16 Inet-15 Inet-14 Inet-13 Inet-12 Inet-11
Inet-18 Inet-19 Inet-20 Inet-21 Inet-22 Inet-23 Inet-24 Inet-25
Katalog Katalog
R. Internet, Elektronik Elektronik
Koleksi Video
9202
Streaming
3.00 17.00
9204 R. Baca
Up
(Chinese Corner)
9203
7.00 9201 R. Server
4.00 4.00 4.00 4.00 4.00 4.00 4.00 4.00 4.00 4.00 4.00

